5 locali in vendita

Ceva, Borgata Cerrero
€ 12.000
5 locali 5 locali
100 Mq 100 Mq
1 bagno 1 bagno

5 locali in vendita

Ceva, Borgata Cerrero

Descrizione annuncio

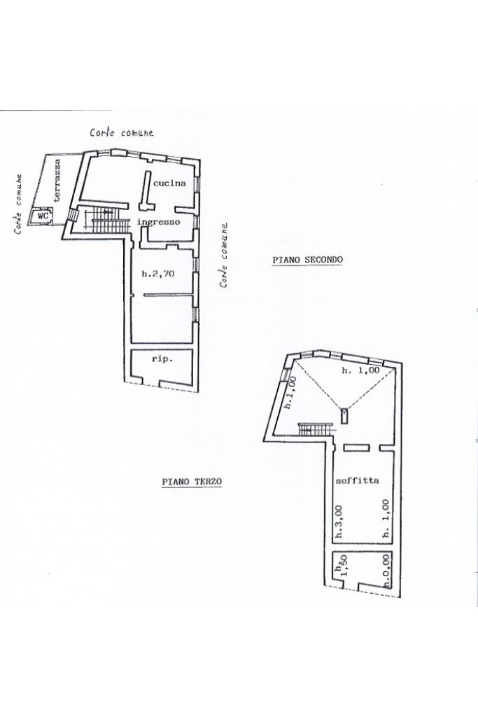
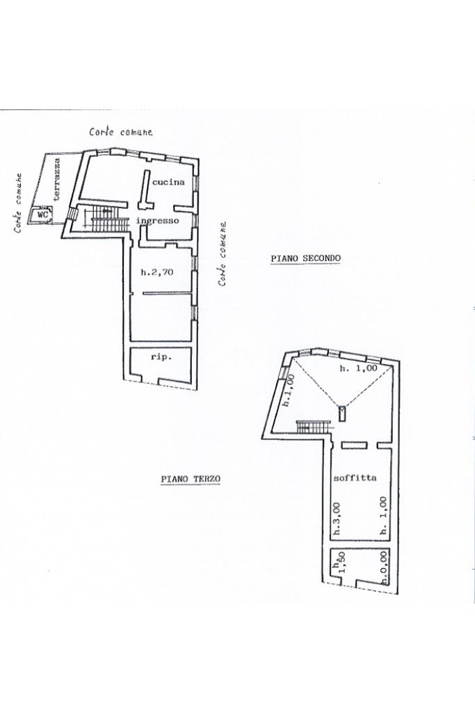
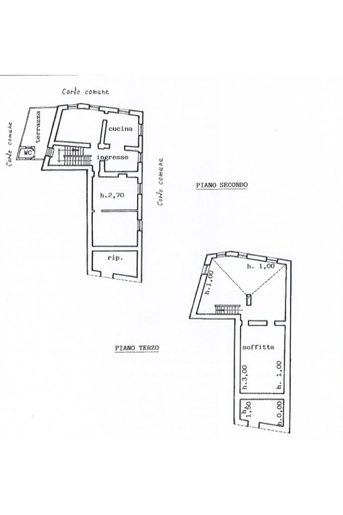
In posizione tranquilla a Sale delle Langhe, proponiamo in vendita un appartamento da ristrutturare imprezziosito da un appezzamento di terreno, situato al secondo piano di una casa semindipendente.

L’immobile è composto da ingresso, due cucine, due camere da letto e un comodo ripostiglio. Scendendo di qualche gradino dal vano scala, si accede a una spaziosa terrazza, dove si trova anche il bagno.

Al terzo piano è presente una soffitta molto ampia che copre l’intera superficie dell’appartamento, ideale come spazio aggiuntivo o per un futuro recupero.

Completano la proprietà vari locali al piano terra ad uso cantina, legnaia e deposito attrezzi.

Siamo a vostra disposizione per visionare l'immobile e per maggiori informazioni.

Mostra tutto

Nelle vicinanze

Trasporto pubblico Trasporto pubblico
Sale Langhe
Sale Langhe
1,9 Km
Trasporto pubblico
2,5 Km
Scuole Scuole
Scuola primaria di Sale delle Langhe
2,4 Km
Scuola dell'infanzia di Sale delle Langhe
2,4 Km
Farmacia Farmacia
Farmacia San Pietro
2,5 Km
Ospedali Ospedali
Ospedale Poveri Infermi
2,6 Km
Supermercati Supermercati
Conad
2,3 Km
Ristoranti Ristoranti
Osteria delle Erbe
2,9 Km
Mostra tutto

Caratteristiche

Rif.:
61103282
Piano:
2 di 3 (Piano alto)
Terrazzi:
1
Camere da letto:
2
Arredamento:
Parziale
Condizionamento:
Assente
Mostra tutto
Prezzo Prezzo
€ 12.000
Rata mutuo Rata mutuo
€ 53 / mese
Spese annue Spese annue
€ 0
Proponi il tuo prezzoProponi il tuo prezzo

Classe Energetica

Questo immobile è esente da classe energetica
Anno di costruzione:
1920
Riscaldamento:
Assente

Ti interessa visionare l'immobile?

Fissa un appuntamento  Fissa un appuntamento

Richiedi informazioni

* Questi campi sono obbligatori

Calcola il tuo mutuo

Semplice e senza impegno
Anticipo

( % )
Mutuo

( % )

pochi semplici passi

inserisci i tuoi dati
Questionario completato
Grazie per aver richiesto un appuntamento senza impegno con un nostro Consulente del Credito e Assicurativo.

Hai inserito correttamente tutti i dati necessari e a breve riceverai una e-mail con un link da convalidare per inviare i tuoi dati.
Affiliato
Immobiliare Oro D.I.
Via Guglielmo Marconi, 1 12063 Dogliani (CN)

Il nostro staff


  • Mirko Vetrano
    Affiliato

  • Veronica Langhetti
    Collaboratrice

  • Gaia Messuerotti
    Coordinatrice
Via Guglielmo Marconi, 1 12063 Dogliani (CN)
Zona: Dogliani-Monchiero-Piozzo-Carrù-Farigliano
Mostra su mappa
Affiliato
Immobiliare Oro D.I.
Via Guglielmo Marconi, 1 12063 Dogliani (CN)

2025 Tecnocasa Franchising S.p.A. - P. IVA 08365160152 - Via Monte Bianco 60/A 20089 Rozzano (MI). Ogni agenzia ha un proprio titolare ed è autonoma. Privacy policy | Policy utilizzo | Cookie policy