Casa semindipendente in vendita

Mondovì, Strada Dei Curetti
€ 40.000
150 Mq 150 Mq

Casa semindipendente in vendita

Mondovì, Strada Dei Curetti

Descrizione annuncio

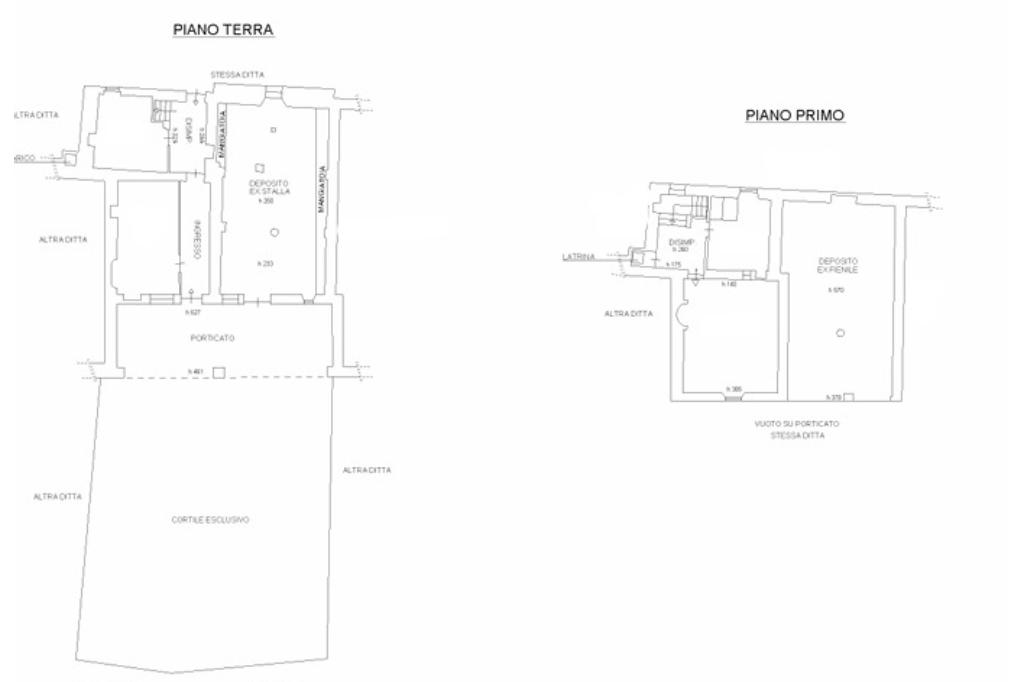
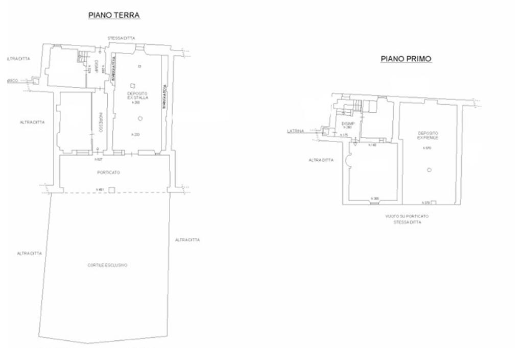
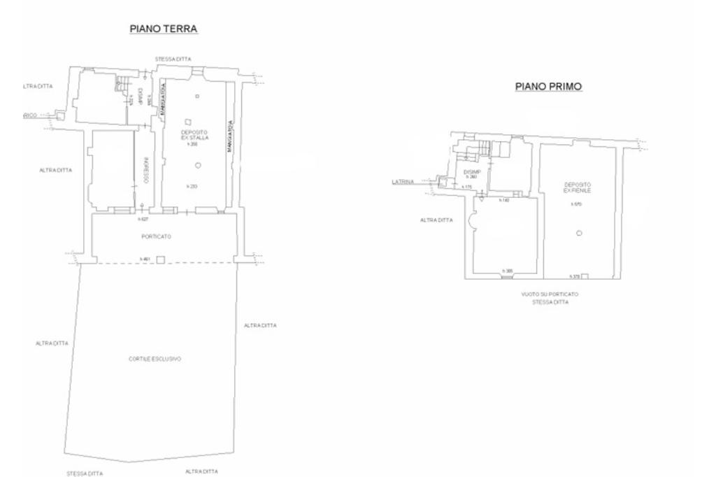
In una frazione di Mondovì, a pochi minuti dal centro, proponiamo in vendita questo rustico da ristrutturare, libero su due lati.

L'immobile si sviluppa su due livelli, entrambi i piani presentano diversi locali attualmente allo stato originale, ad uso cantina, sgombero e ricovero attrezzi.

La soluzione si offre molto bene a progetti di b&b, strutture ricettive o ristorative.

Siamo a vostra disposizione per visionare l'immobile e per maggiori informazioni.

Mostra tutto

Nelle vicinanze

Trasporto pubblico Trasporto pubblico
Mondovì
Mondovì
2,6 Km
Trasporto pubblico
960 m
Mondovi' (P.za Mellano)
Mondovi' (P.za Mellano)
3,0 Km
Roccadebaldi
Roccadebaldi
2,9 Km
Ricariche auto elettriche Ricariche auto elettriche
SEMM Bruno Gomme
2,0 Km
Scuole Scuole
Scuola Primaria Borgo Aragno
1,8 Km
Scuole
2,2 Km
Scuola Primaria S. Anna
2,2 Km
Palazzetto dello sport Nino Manera
2,8 Km
Istituto Professionale per il Commercio "M. Bellisario"
2,8 Km
Farmacia Farmacia
Farmacia Gasco
2,9 Km
Parafarmacia Punto Salute
2,9 Km
Supermercati Supermercati
Dpiù
2,3 Km
Mercatò
2,6 Km
Aldi
2,8 Km
In's
2,8 Km
Lidl
3,0 Km
Negozi Negozi
ok market
2,4 Km
Terranova
3,0 Km
Bar Bar
Sottoaceto
2,5 Km
Barbun
2,5 Km
Ristoranti Ristoranti
Locanda da Aimo
940 m
Trattoria Breolungi
1,9 Km
Pizzeria il caminetto
2,4 Km
Trattoria croce d'oro
2,4 Km
Mostra tutto

Caratteristiche

Rif.:
61087355
Piano:
2 di 2 (Piano su più livelli)
Arredamento:
Assente
Condizionamento:
Assente
Ascensore:
No
Riscaldamento:
Assente
Mostra tutto
Prezzo Prezzo
€ 40.000
Rata mutuo Rata mutuo
€ 178 / mese
Spese annue Spese annue
€ 0
Proponi il tuo prezzoProponi il tuo prezzo

Classe Energetica

F
F
F
F
F
F
F
F
F
EP invernale del fabbricato:
EP estiva del fabbricato:
Anno di costruzione:
1970
Riscaldamento:
Assente

Ti interessa visionare l'immobile?

Fissa un appuntamento  Fissa un appuntamento

Richiedi informazioni

* Questi campi sono obbligatori

Calcola il tuo mutuo

Semplice e senza impegno
Anticipo

( % )
Mutuo

( % )

pochi semplici passi

inserisci i tuoi dati
Questionario completato
Grazie per aver richiesto un appuntamento senza impegno con un nostro Consulente del Credito e Assicurativo.

Hai inserito correttamente tutti i dati necessari e a breve riceverai una e-mail con un link da convalidare per inviare i tuoi dati.
Affiliato
Immobiliare Oro D.I.
Via Guglielmo Marconi, 1 12063 Dogliani (CN)

Il nostro staff


  • Mirko Vetrano
    Affiliato

  • Veronica Langhetti
    Collaboratrice

  • Gaia Messuerotti
    Coordinatrice
Via Guglielmo Marconi, 1 12063 Dogliani (CN)
Zona: Dogliani-Monchiero-Piozzo-Carrù-Farigliano
Mostra su mappa
Affiliato
Immobiliare Oro D.I.
Via Guglielmo Marconi, 1 12063 Dogliani (CN)

2025 Tecnocasa Franchising S.p.A. - P. IVA 08365160152 - Via Monte Bianco 60/A 20089 Rozzano (MI). Ogni agenzia ha un proprio titolare ed è autonoma. Privacy policy | Policy utilizzo | Cookie policy