Trilocale in vendita

Montaldo Di Mondovì, Via Brunenghi
€ 50.000
3 locali 3 locali
70 Mq 70 Mq
1 bagno 1 bagno

Trilocale in vendita

Montaldo Di Mondovì, Via Brunenghi

Descrizione annuncio

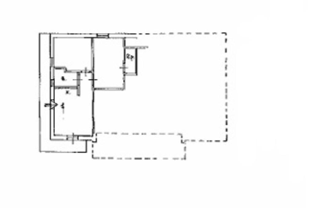
Nel comune di Montaldo Mondovi', al primo piano rialzato di una palazzina, proponiamo in vendita questo appartamento così composto: ingresso, sala e cucina in un unico ambiente, due camere da letto e un bagno.

Completa la proprità un box auto.

Siamo a vostra disposizione per visionare l'immobile e per maggiori informazioni.

Mostra tutto

Nelle vicinanze

Trasporto pubblico Trasporto pubblico
Trasporto pubblico
1,3 Km
Seggiovia
Seggiovia
1,7 Km
Scuole Scuole
Scuole
2,3 Km
Farmacia Farmacia
Farmacia Costanzo
1,0 Km
Supermercati Supermercati
Doro
1,4 Km
Negozi Negozi
SO.RE.MA.
590 m
Panetteria Somà
1,1 Km
Alimentari Ferreri
1,2 Km
Panificio Sarak
1,2 Km
Bar Bar
Niki Bar
1,0 Km
Bar Country
1,1 Km
Bar Gettone
1,1 Km
Bar Stefano
1,3 Km
Bar
2,2 Km
Ristoranti Ristoranti
La locanda
620 m
Ristorante Grattacielo
1,0 Km
Il Caminetto
1,1 Km
Rifugio La Maddalena
2,3 Km
Locanda "La Tana dell'Orso"
2,5 Km
Mostra tutto

Caratteristiche

Rif.:
61102306
Piano:
1 di 2 (Piano basso)
Box:
1
Posti auto:
1
Balconi:
1
Camere da letto:
2
Mostra tutto
Prezzo Prezzo
€ 50.000
Rata mutuo Rata mutuo
€ 222 / mese
Spese annue Spese annue
€ 1.000
Proponi il tuo prezzoProponi il tuo prezzo

Classe Energetica

Questo immobile è esente da classe energetica
Anno di costruzione:
1970
Riscaldamento:
Autonomo
Tipo impianto:
A radiatori
Tipo alimentazione:
Metano

Ti interessa visionare l'immobile?

Fissa un appuntamento  Fissa un appuntamento

Richiedi informazioni

* Questi campi sono obbligatori

Calcola il tuo mutuo

Semplice e senza impegno
Anticipo

( % )
Mutuo

( % )

pochi semplici passi

inserisci i tuoi dati
Questionario completato
Grazie per aver richiesto un appuntamento senza impegno con un nostro Consulente del Credito e Assicurativo.

Hai inserito correttamente tutti i dati necessari e a breve riceverai una e-mail con un link da convalidare per inviare i tuoi dati.
Affiliato
Immobiliare Oro D.I.
Via Guglielmo Marconi, 1 12063 Dogliani (CN)

Il nostro staff


  • Mirko Vetrano
    Affiliato

  • Veronica Langhetti
    Collaboratrice

  • Gaia Messuerotti
    Coordinatrice
Via Guglielmo Marconi, 1 12063 Dogliani (CN)
Zona: Dogliani-Monchiero-Piozzo-Carrù-Farigliano
Mostra su mappa
Affiliato
Immobiliare Oro D.I.
Via Guglielmo Marconi, 1 12063 Dogliani (CN)

2025 Tecnocasa Franchising S.p.A. - P. IVA 08365160152 - Via Monte Bianco 60/A 20089 Rozzano (MI). Ogni agenzia ha un proprio titolare ed è autonoma. Privacy policy | Policy utilizzo | Cookie policy